Nel Comune di Desenzano del Garda, nella rinomata località San Martino della Battaglia, a pochi minuti dal lago e in posizione strategica rispetto ai principali servizi, proponiamo la realizzazione di tre nuove villette.
La villetta di Testa, progettata per offrire il massimo del comfort e della funzionalità, disporrà di un giardino privato su tre lati. L'immobile sarà costruito in Classe A4, utilizzando tecnologie all'avanguardia per garantire efficienza energetica e sostenibilità.
Distribuzione degli spazi:
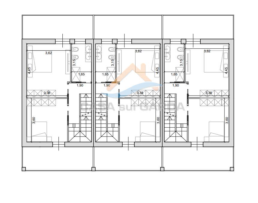
Piano terra: ampio soggiorno con cucina a vista e un bagno.
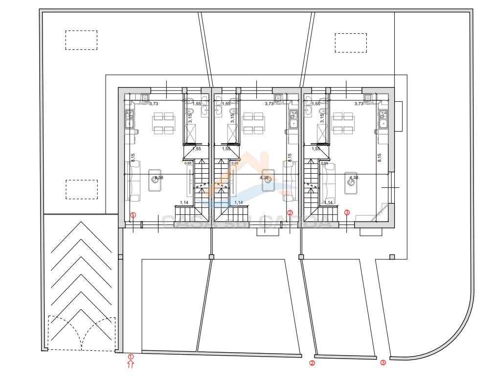
Piano primo: due camere da letto e un secondo bagno.
Piano secondo: zona sundeck con terrazza scoperta, preceduta da un'area coperta, ideale per il relax all’aperto.
Inoltre, è prevista la possibilità di realizzare una piscina privata, rendendo questa soluzione perfetta per chi cerca un’abitazione di prestigio.
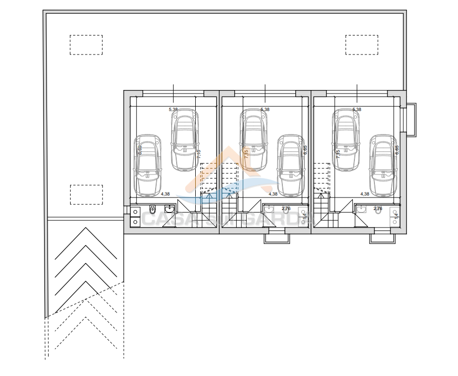
Piano interrato: box auto doppio con annessa lavanderia, garantendo comodità e spazi accessori funzionali.
Questa proposta rappresenta un’occasione unica per chi desidera vivere in un contesto moderno, con ampi spazi e comfort, a pochi passi dalle bellezze del Lago di Garda.
La villetta di Testa, progettata per offrire il massimo del comfort e della funzionalità, disporrà di un giardino privato su tre lati. L'immobile sarà costruito in Classe A4, utilizzando tecnologie all'avanguardia per garantire efficienza energetica e sostenibilità.
Distribuzione degli spazi:
Piano terra: ampio soggiorno con cucina a vista e un bagno.
Piano primo: due camere da letto e un secondo bagno.
Piano secondo: zona sundeck con terrazza scoperta, preceduta da un'area coperta, ideale per il relax all’aperto.
Inoltre, è prevista la possibilità di realizzare una piscina privata, rendendo questa soluzione perfetta per chi cerca un’abitazione di prestigio.
Piano interrato: box auto doppio con annessa lavanderia, garantendo comodità e spazi accessori funzionali.
Questa proposta rappresenta un’occasione unica per chi desidera vivere in un contesto moderno, con ampi spazi e comfort, a pochi passi dalle bellezze del Lago di Garda.
Mappa
Contattaci
INFORMAZIONI EXTRA
AMBIENTI
| Soggiorno angolo cottura | |
| Terrazzi | 1 |
| Giardino | |
| Garage doppio | 1 |
| Lavanderia | |
| Porticato |
LIVELLI & COMFORT
| Livelli | Piano terra , Primo piano |
| Aria condizionata | |
| Pannelli fotovoltaici | |
| Riscaldamento autonomo | |
| Riscaldamento a pavimento |



